| Hotline hỗ trợ khách hàng: 0975.922.699

Tất cả tin tức

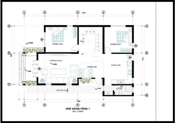
MẶT BẰNG LÀ GÌ? NHỮNG LƯU Ý KHI ĐỌC HỒ SƠ MẶT BẰNG

Nhiều doanh nghiệp không thể đến xem và khảo sát tòa nhà trực tiếp, nên bản vẽ mặt bằng là công cụ hữu ích để hiểu rõ cấu trúc của nó. Trong bài viết này, hãy cùng Kiến Trúc Phong Thủy Khang Hưng t...

Giỏ hàng

zalo