Nhiều doanh nghiệp không thể đến xem và khảo sát tòa nhà trực tiếp, nên bản vẽ mặt bằng là công cụ hữu ích để hiểu rõ cấu trúc của nó. Trong bài viết này, hãy cùng Kiến Trúc Phong Thủy Khang Hưng tìm hiểu chi tiết xem mặt bằng là gì nhé!
Mặt bằng là gì?
"Mặt bằng" hay còn gọi là sơ đồ mặt bằng (Floor Plan), là bản vẽ hai chiều mô tả cấu trúc và thiết kế của một ngôi nhà hoặc công trình xây dựng, với góc nhìn từ trên xuống. Bản vẽ này thường bao gồm các thông tin như vị trí của các tường, cửa, cửa sổ, thậm chí cả nội thất như bàn, ghế và thiết bị gia dụng. Sơ đồ mặt bằng cung cấp cái nhìn tổng quan và chi tiết về không gian, giúp người xem hiểu rõ hơn về bố cục và tổ chức không gian của công trình đó.

Bản vẽ bao gồm các thông tin như vị trí của các tường và cửa
Nó đặc biệt hữu ích trong các quá trình như thiết kế kiến trúc, trang trí nội thất hoặc trong việc lập kế hoạch xây dựng và cải tạo nhà cửa. Sơ đồ mặt bằng cũng thường được sử dụng trong việc quảng cáo và bán nhà, vì nó cho phép người mua hình dung không gian và thiết kế của ngôi nhà một cách rõ ràng.
Đặc điểm của mặt bằng
Bản vẽ mặt bằng thường chủ yếu được vẽ từ góc độ vuông góc từ trên cao để hiển thị tổng quan về cấu trúc của dự án.
Cố gắng loại bỏ các phần khuất hoặc sử dụng kỹ thuật vẽ nhẹ nhàng để chỉ ra vùng đó là không thể thấy trong bản vẽ.
Nếu dự án có nhiều tầng, thì mỗi tầng sẽ có một bản vẽ mặt bằng riêng biệt. Điều này giúp hiển thị rõ ràng về cấu trúc từng tầng và quan hệ giữa chúng.

Bản vẽ mô tả chi tiết vật thể trong nhà
Bản vẽ hình cắt ngang thường được sử dụng để mô tả chi tiết cấu trúc nội thất và vị trí của cửa sổ, cửa đi, bậc cầu thang, vv.
Để mô tả vật thể hoặc chi tiết trong ngôi nhà, sử dụng các ký hiệu cách điệu như mũi tên, đường nét đậm, đánh dấu mô tả, chú thích để làm nổi bật các yếu tố quan trọng.
Vai trò của sơ đồ mặt bằng
Sơ đồ mặt bằng đóng vai trò quan trọng trong quá trình thiết kế và thi công các công trình kiến trúc. Dưới đây là một số vai trò chính của sơ đồ mặt bằng:
Bản vẽ mặt bằng cung cấp thông tin chi tiết về cấu trúc tổng thể của công trình. Các thông số như diện tích, số tầng, kích thước, và cách bố trí không gian được thể hiện rõ ràng, giúp các chuyên gia hiểu rõ về dự án.
Kỹ sư và các nhà thiết kế có thể sử dụng sơ đồ mặt bằng để đưa ra và đánh giá các phương án xây dựng khác nhau. Việc quản lý và điều chỉnh dự án trở nên dễ dàng hơn khi có một hình ảnh tổng thể từ sơ đồ mặt bằng.

Bản vẽ mặt bằng cung cấp thông tin chi tiết về cấu trúc tổng thể của công trình
Bản vẽ mặt bằng giúp đảm bảo rằng công trình được thiết kế và xây dựng theo cách cân đối, đáp ứng đúng yêu cầu của chủ đầu tư và đồng thời đảm bảo tính khoa học trong việc sử dụng không gian.
Sơ đồ mặt bằng cung cấp thông tin chi tiết về vị trí của các đối tượng trong không gian, giúp kỹ sư và nhà thiết kế xây dựng bố trí nội thất một cách hợp lý, đáp ứng được yêu cầu và thỏa mãn mỹ quan.
Phân loại mặt bằng
Trong quá trình thiết kế và xây dựng công trình kiến trúc, mặt bằng tổng thể và mặt bằng tầng điển hình đóng vai trò quan trọng, mang lại cái nhìn toàn diện và chi tiết về dự án. Mặt bằng tổng thể là bức tranh tổng quan về cách bố trí tổng thể của tòa nhà, với thông tin về số tầng, các khu vực chức năng, và tiện ích chung. Mỗi phân khu được chú thích hoặc đánh số, tạo nên một bức tranh tổng thể rõ ràng và dễ hiểu.

Phân loại mặt bằng
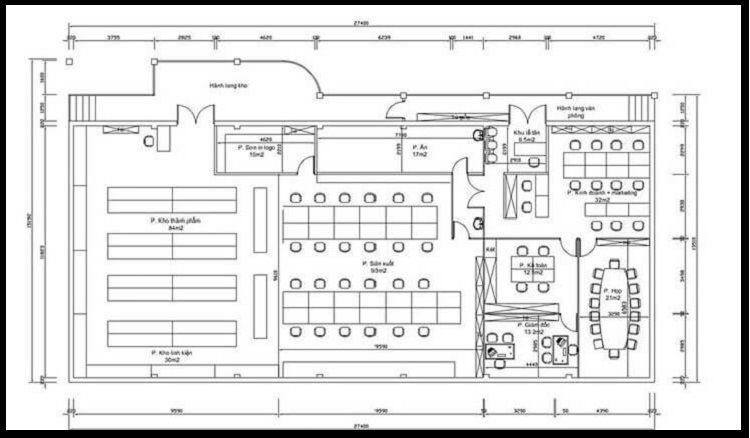
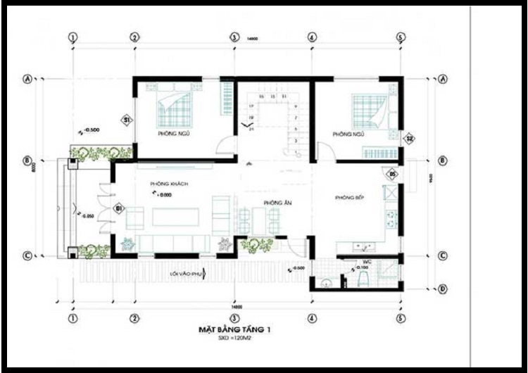
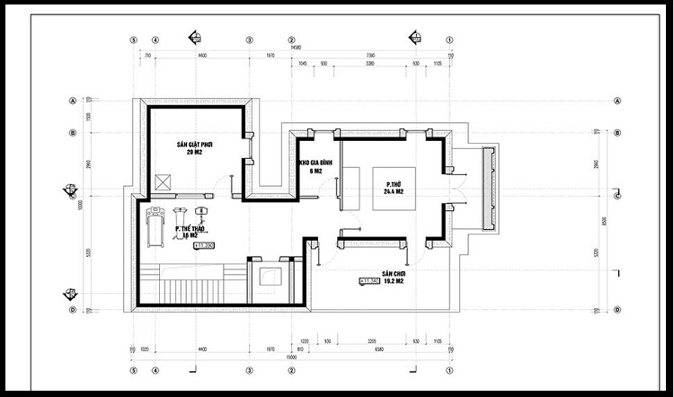
Trái ngược với đó, mặt bằng tầng điển hình cung cấp chi tiết về từng tầng của công trình. Thông tin về số phòng, kích thước cụ thể và bố trí nội thất được thể hiện một cách chi tiết, giúp kỹ sư và nhà thiết kế hiểu rõ về cấu trúc nội thất và không gian chi tiết từng tầng. Mỗi khu vực được chú thích với chiều rộng, chiều dài, và độ cao tầng, tạo nên một hình ảnh đầy đủ và chính xác.
Sự kết hợp giữa mặt bằng tổng thể và mặt bằng tầng điển hình tạo ra cái nhìn toàn diện và chi tiết về dự án, hỗ trợ quá trình quản lý, thiết kế, và xây dựng. Đây là công cụ quan trọng giúp đảm bảo tính khoa học, cân đối và chính xác của công trình kiến trúc từ khâu lập kế hoạch đến thực hiện.
Kết luận
Kiến Trúc Phong Thủy Khang Hưng vừa chia sẻ cho các bạn những thông tin chi tiết về mặt bằng nhà ở. Hy vọng những điều mà chúng tôi cung cấp sẽ giúp bạn có thêm kiến thức và kinh nghiệm khi thiết kế ngôi nhà của mình. Nếu bạn đang cần thiết kế và thi công nhà ở, hãy liên hệ với chúng tôi qua số hotline 0975 922 699 để được tư vấn chi tiết.