Thiết kế kiến trúc đóng vai trò rất quan trọng trong quá trình xây dựng một ngôi nhà. Nó không chỉ quyết định đến vẻ đẹp thẩm mỹ mà còn ảnh hưởng lớn đến công năng sử dụng và sự bền vững của công trình. Vậy thiết kế kiến trúc là gì và tại sao cần phải thực hiện trước khi xây dựng? Hãy cùng Kiến Trúc Phong Thủy Khang Hưng tìm hiểu chi tiết qua bài viết sau đây.
Thiết Kế Kiến Trúc Là Gì?
Thiết kế kiến trúc là quá trình sắp xếp và bố trí không gian bên ngoài và bên trong của một công trình. Nó bao gồm việc tổ chức kiến trúc ngoại cảnh, kết cấu công trình, hệ thống điện nước, ánh sáng,... để tạo ra một không gian sống tiện nghi, đáp ứng đầy đủ nhu cầu sử dụng và mang tính thẩm mỹ cao.

Thiết kế kiến trúc là gì
Thiết kế kiến trúc không chỉ đơn giản là vẽ ra hình dáng bên ngoài của ngôi nhà mà còn yêu cầu sự kết hợp giữa yếu tố sáng tạo và tính toán kỹ lưỡng về kỹ thuật. Kiến trúc sư phải có kiến thức chuyên sâu về xây dựng, vật liệu và khí hậu để đảm bảo công trình không chỉ đẹp mà còn vững chắc và bền bỉ theo thời gian.
Sự Khác Biệt Giữa Thiết Kế Kiến Trúc Và Thiết Kế Nội Thất
Mặc dù cả thiết kế kiến trúc và thiết kế nội thất đều có chung mục tiêu là tạo ra không gian sống tiện nghi, chúng có những điểm khác biệt đáng kể:
| Nội dung | Thiết kế kiến trúc | Thiết kế nội thất |
| Phạm vi | Kiến tạo tổng thể kiến trúc bên ngoài và khung xương bên trong | Hoàn thiện không gian nội thất, sắp xếp đồ đạc |
| Cách quy hoạch không gian | Tập trung vào bố cục không gian tổng thể (phòng khách, phòng ngủ, khu vực ban công,...) | Tập trung vào sắp xếp các chi tiết nhỏ như giường, tủ, kệ, bàn ghế |
| Màu sắc | Chú trọng các mảng màu lớn như tường, mái, sàn | Phối hợp tinh tế màu sắc giữa các món đồ nội thất |
| Ánh sáng | Tính toán ánh sáng tự nhiên từ cửa sổ, giếng trời | Bố trí hệ thống đèn trong nhà (đèn âm trần, đèn trang trí) |
| Kiến thức chuyên môn | Kiến thức sâu rộng về kết cấu xây dựng, phong thủy, vật liệu | Kiến thức mỹ thuật và kinh nghiệm sắp xếp nội thất |
Hồ Sơ Thiết Kế Kiến Trúc Bao Gồm Những Gì?
Một bộ hồ sơ thiết kế kiến trúc hoàn chỉnh không chỉ có bản vẽ tổng thể mà còn bao gồm nhiều yếu tố chi tiết để hỗ trợ quá trình thi công. Sau đây là những thành phần chính trong hồ sơ thiết kế:
1. Phối Cảnh 3D
Phối cảnh 3D giúp gia chủ hình dung được không gian ngôi nhà khi hoàn thiện, từ nhiều góc độ khác nhau. Các bản vẽ 3D được dựng bằng phần mềm chuyên dụng để mang đến cái nhìn chân thực và toàn diện về công trình.

Phối cảnh 3D với hình ảnh chi tiết
2. Bản Vẽ Mặt Bằng, Mặt Đứng, Mặt Cắt
- Mặt bằng: Hiển thị cách bố trí các phòng, khu vực chức năng và hệ thống giao thông trong nhà.
- Mặt đứng: Thể hiện hình dáng và thiết kế ngoại thất của ngôi nhà.
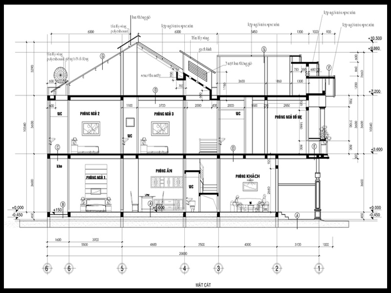
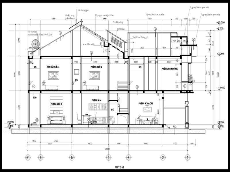
- Mặt cắt: Cung cấp thông tin chi tiết về kết cấu, kích thước của các bộ phận như mái, tường, cửa sổ, cầu thang,...

Tham khảo một bản vẽ bao gồm mặt bằng, mặt đứng, mặt cắt
3. Bản Vẽ Chi Tiết Dầm, Sàn, Mái
Đây là phần không thể thiếu, giúp đội ngũ thi công nắm rõ cách bố trí kết cấu của các bộ phận chính, đảm bảo sự kiên cố và an toàn cho công trình.

Bản vẽ về đầm, sàn, mái
4. Bản Vẽ Chi Tiết Cửa, Vệ Sinh, Ban Công
Các hạng mục nhỏ như cửa, nhà vệ sinh, ban công cũng cần được mô tả rõ ràng về kích thước, vị trí và chất liệu để đảm bảo tính thẩm mỹ và tiện nghi.

Bản vẽ chi tiết về nhà vệ sinh, ban công
Tại Sao Cần Thiết Kế Kiến Trúc Trước Khi Xây Nhà?
1. Đảm Bảo Công Năng Sử Dụng
Một bản thiết kế kiến trúc tốt phải đảm bảo được đầy đủ công năng cho ngôi nhà, phù hợp với nhu cầu sinh hoạt của từng gia đình. Kiến trúc sư sẽ tính toán kỹ lưỡng để không gian được bố trí hợp lý, tạo sự thoải mái và thuận tiện nhất.

Đảm bảo công năng đầy đủ cho ngôi nhà của bạn
2. Đảm Bảo An Toàn Và Bền Vững
Thiết kế kiến trúc không chỉ đẹp mà còn cần chắc chắn, kiên cố để ngôi nhà tồn tại bền vững với thời gian. Kiến trúc sư sẽ tính toán các yếu tố về kết cấu, hệ thống điện nước, phong thủy để đảm bảo an toàn và phù hợp với yêu cầu của chủ nhà.

Ngôi nhà của bạn sẽ luôn kiên cố, bền vững
3. Đáp Ứng Tiêu Chí Về Thẩm Mỹ
Mỗi gia chủ đều mong muốn ngôi nhà của mình đẹp và độc đáo. Thiết kế kiến trúc chính là yếu tố quyết định giúp ngôi nhà trở nên nổi bật, thể hiện được gu thẩm mỹ của chủ nhân.

Tính thẩm mỹ mang tính cá nhân hóa
4. Tiết Kiệm Ngân Sách
Với bản vẽ chi tiết trong tay, bạn sẽ ước tính được chi phí xây dựng, tránh phát sinh những khoản không cần thiết. Hơn nữa, kiến trúc sư có thể tư vấn các giải pháp tiết kiệm chi phí nhưng vẫn đảm bảo chất lượng.
Thiết Kế Kiến Trúc Phù Hợp Cho Từng Loại Hình Công Trình
Mỗi công trình đều có lối thiết kế kiến trúc riêng biệt, tùy thuộc vào nhu cầu và phong cách mà gia chủ mong muốn. Sau đây là một số loại hình thiết kế kiến trúc phổ biến:
Thiết Kế Kiến Trúc Nhà Cấp 4
Nhà cấp 4 thích hợp cho gia đình ít thành viên, có không gian sống thoải mái và tiết kiệm chi phí xây dựng.

Nhà cấp 4 giúp tiết kiệm chi phí cho mọi nhà
Thiết Kế Kiến Trúc Nhà Phố
Nhà phố thường nằm trong khu vực đông dân cư, yêu cầu cao về tính thẩm mỹ mặt tiền và tối ưu không gian.

Nhà phố đẹp kiểu dáng hiện đại
Thiết Kế Kiến Trúc Biệt Thự
Biệt thự thường có diện tích lớn, yêu cầu cao về tính thẩm mỹ và sự sang trọng. Phong cách tân cổ điển hoặc hiện đại là hai xu hướng được nhiều gia chủ ưa chuộng.

Mẫu biệt thự sang trọng bậc nhất
Vì Sao Nên Chọn Kiến Trúc Phong Thủy Khang Hưng?
Kiến Trúc Phong Thủy Khang Hưng là đơn vị hàng đầu trong lĩnh vực thiết kế và thi công kiến trúc, với đội ngũ kiến trúc sư giàu kinh nghiệm và luôn nắm bắt xu hướng. Chúng tôi cam kết mang đến những giải pháp thiết kế tối ưu nhất, đáp ứng mọi nhu cầu của khách hàng về công năng, thẩm mỹ và phong thủy.