Mặt bằng công năng là thuật ngữ khá quen thuộc trong ngành xây dựng tuy nhiên không phải ai cũng hiểu rõ về chúng. Bài viết hôm nay chúng ta sẽ cùng nhau tìm hiểu mặt bằng công năng là gì và những sai lầm phổ biến khi thiết kế mặt bằng. Cùng tìm hiểu ngay cùng chúng tôi nhé.
Khái niệm về mặt bằng công năng
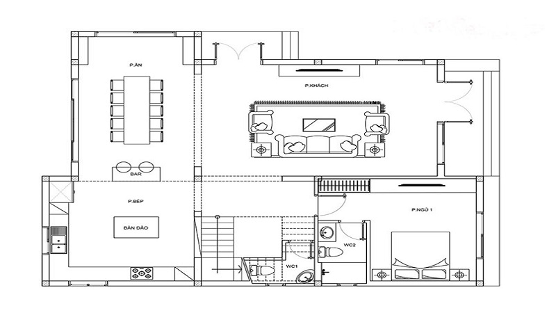
Mặt bằng công năng còn được gọi là bản vẽ công năng, là một phần quan trọng trong quá trình thiết kế kiến trúc. Đó là việc bố trí các không gian, phòng sử dụng, không gian sinh hoạt và vị trí của đồ nội thất trong công trình xây dựng như một ngôi nhà hay một căn hộ. Mặt bằng công năng được biểu diễn thông qua bản vẽ mặt cắt ngang của công trình, cho phép mọi người hình dung được không gian bên trong công trình được sắp xếp và kết nối với nhau.

Mặt bằng công năng còn được gọi là bản vẽ công năng
Sự chính xác và sự logic trong việc bố trí mặt bằng công năng có thể ảnh hưởng lớn đến trải nghiệm sống và sử dụng không gian trong nhà. Việc này không chỉ liên quan đến việc đặt phòng ở những vị trí thích hợp để tối ưu hóa ánh sáng và không gian, mà còn bao gồm các yếu tố như lưu thông, tiện ích và tạo ra một môi trường sống tiện nghi và hợp lý cho người sử dụng.
Thiết kế mặt bằng công năng cần lưu ý điều gì?
Nhu cầu sử dụng của gia đình
Mỗi gia đình là một thế giới riêng, có đặc trưng và nhu cầu riêng biệt. Trước khi bắt đầu quy trình thiết kế, việc hiểu rõ về các thành viên trong gia đình, từ số lượng đến các đặc điểm và yêu cầu sử dụng của họ là bước cực kỳ quan trọng. Đây là lúc kiến trúc sư không chỉ là người thiết kế, mà còn là người tư vấn, người lắng nghe và hiểu rõ mong muốn của gia chủ.
Bằng cách nghiên cứu kỹ lưỡng về các thành viên trong gia đình, kiến trúc sư có thể đàm phán với gia chủ để xác định các yêu cầu cụ thể. Số lượng thành viên trong gia đình quyết định đến việc cần bao nhiêu phòng ngủ, bao nhiêu phòng tắm. Nếu có người cao tuổi, việc thiết kế mặt bằng công năng để họ dễ dàng di chuyển trở nên quan trọng. Nếu có trẻ nhỏ, an toàn và tiện ích phù hợp với trẻ cũng cần được xem xét.
Thiết kế mặt bằng công năng cần lưu ý điều gì?
Yêu cầu sử dụng hàng ngày của gia chủ cũng là yếu tố chủ đạo trong việc quyết định cách phân chia không gian sinh hoạt. Khu vực bếp nên được thiết kế sao cho phản ánh lối sống và sở thích nấu nướng của gia đình. Phòng khách không chỉ là nơi tiếp khách, mà còn là nơi quây quần gia đình, thảo luận và giải trí. Những yêu cầu đặc biệt như phòng làm việc tại nhà, phòng thể dục hoặc không gian dành riêng cho sở thích cá nhân cũng cần được xem xét và tích hợp vào kế hoạch thiết kế.
Cuối cùng, việc tư vấn của kiến trúc sư không chỉ giúp gia chủ có được ngôi nhà đẹp mắt mà còn đảm bảo rằng không gian sống thật sự phản ánh đúng nhu cầu và cá nhân tính của gia đình. Sự kết hợp giữa chức năng, thoáng đãng và thẩm mỹ chính là điểm đặc biệt mà một thiết kế nhà thông minh mang lại.
Không gian bên trong và bên ngoài cần có sự liên hệ với nhau

Không gian bên trong và bên ngoài cần có sự liên hệ với nhau
Các yếu tố tự nhiên như ánh sáng, hướng gió, nhiệt độ và độ ẩm đều đóng vai trò quan trọng trong việc thiết kế một không gian sống thoáng đãng, dễ chịu và sức khỏe cho cả gia đình. Dưới đây là cách các yếu tố này có thể được tích hợp vào thiết kế mặt bằng công năng của một căn nhà:
1. Ánh Sáng Tự Nhiên
Hướng Cửa Sổ: Xác định hướng cửa sổ để tối đa hóa việc nhận ánh sáng tự nhiên trong nhà. Phòng khách và phòng ngủ thường nên có nhiều cửa sổ hơn để tận dụng ánh sáng ban ngày.
Trần Nhà Cao: Thiết kế trần nhà cao giúp ánh sáng có thể lan tỏa sâu vào trong căn phòng, tạo cảm giác không gian rộng lớn hơn.
2. Hướng Gió và Nhiệt Độ
Hướng Gió: Đặt cửa và cửa sổ ở các hướng thích hợp để tận dụng gió tự nhiên. Điều này giúp tối thiểu hóa việc sử dụng máy lạnh hoặc quạt.
Cấu Trúc Tường: Sử dụng vật liệu cách nhiệt tốt để giữ nhiệt độ ổn định trong nhà, ngay cả khi thời tiết bên ngoài thay đổi.

Mặt bằng công năng theo hướng gió và nhiệt độ
3. Độ Ẩm và Khí Quyển
Hệ Thống Thông Hơi: Đảm bảo rằng nhà có đủ thông hơi để tránh sự ẩm mốc và giữ cho không khí trong nhà tươi mới.
Vườn Cây: Xanh cây và cây xanh quanh nhà không chỉ tạo ra không gian xanh mát mà còn giúp lọc không khí và tăng độ ẩm.
4. Làm Sạch và An Toàn
Cửa và Cửa Sổ Dễ Vệ Sinh: Chọn các vật liệu dễ lau chùi và bền bỉ để giữ cho cửa và cửa sổ luôn sáng bóng và dễ vệ sinh.
Hệ Thống An Toàn: Đảm bảo rằng cửa và cửa sổ có thể được khóa chắc chắn để đảm bảo an toàn cho gia đình.
Thiết kế mặt bằng công năng tận dụng được những yếu tố thiên nhiên này, không chỉ giúp giảm tiêu thụ năng lượng mà còn tạo ra một môi trường sống thoáng đãng và lành mạnh cho gia đình. Sự cân nhắc kỹ lưỡng về các yếu tố này không chỉ làm cho ngôi nhà trở nên dễ sống hơn mà còn tạo ra một không gian sống hài hòa với thiên nhiên.
Phong Thủy
Phong thủy đã trở thành một yếu tố không thể thiếu trong việc xây dựng nhà ở Việt Nam, với niềm tin sâu sắc rằng việc thiết kế nhà cửa phải điều hòa không chỉ không gian mà còn năng lượng xung quanh để đảm bảo sức khỏe, bình an và thịnh vượng cho gia đình. Trong quá trình thiết kế mặt bằng công năng, sự chú ý đặc biệt đổ vào việc tối ưu hóa các yếu tố phong thủy, đặc biệt là theo tuổi của người giữ vai trò trụ cột trong gia đình.

Mặt bằng công năng theo phong thủy
Kiến trúc sư không chỉ là người thiết kế, mà còn là người hướng dẫn, tư vấn và người dẫn dắt qua lịch sử và truyền thống của phong thủy. Họ tập trung vào việc đặt hướng nhà, cửa chính và các cửa sổ sao cho tối ưu hóa năng lượng tích cực. Cửa chính thường được đặt theo hướng mặt trời mọc, nhằm thu hút năng lượng tích cực và tạo lập sự kết nối với thiên nhiên.
Các không gian bên trong như phòng khách, phòng bếp, phòng thờ và thậm chí cả những không gian nhỏ như phòng tắm và nhà vệ sinh cũng được sắp xếp kỹ lưỡng theo quan niệm phong thủy. Thiết kế mặt bằng công năng sao cho ánh sáng tự nhiên có thể thấp thoáng vào, tạo nên không gian thoáng đãng và tích cực. Phòng bếp, nơi tập trung vào việc nấu nướng và chuẩn bị thức ăn, được bố trí sao cho hài hòa và thuận lợi với năng lượng.
Trong phòng thờ, nơi linh thiêng của gia đình, việc đặt các bức tượng và bức tranh, cũng như hướng của bàn thờ, được xem xét cẩn thận để đảm bảo sự linh thiêng và yên bình. Thậm chí cả việc thiết kế nhà vệ sinh cũng không thoái trừ khỏi sự quan tâm, với việc chú trọng vào việc lưu thông không gian và năng lượng tích cực.
Kết luận
Tất cả những điều này không chỉ là việc thiết kế mặt bằng công năng một ngôi nhà, mà là việc tạo dựng một không gian sống mang đầy đủ sức khỏe và hạnh phúc theo quan niệm phong thủy. Sự hiểu biết sâu sắc về phong thủy của kiến trúc sư không chỉ đáp ứng yêu cầu về thiết kế mà còn đem lại sự an lạc và thịnh vượng cho gia đình, điều mà mỗi gia chủ Việt Nam đều trân trọng hết mức.